Проектировщикам

Мы предоставляем индивидуальный подход к каждому проекту и каждому чертежу. 


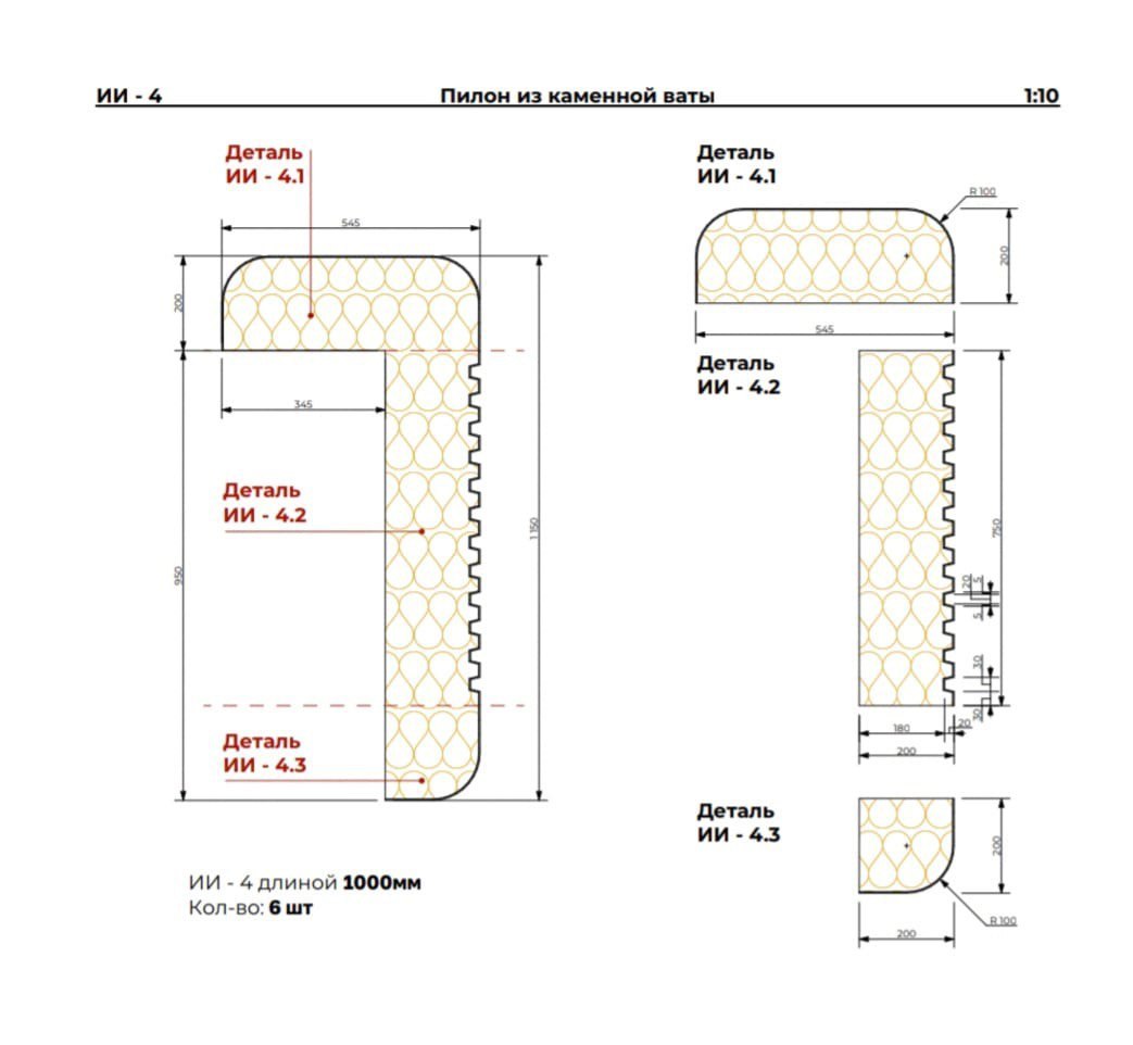
Наши технические специалисты разработали всю необходимую документацию, тех.листы, узлы крепления фасадного декора. Мы изготовим фасадный декор по вашим чертежам. Также у нас есть архитектурные форматы (3DS, PLN, OBJ, DWG) наших готовых изделий, которые вы можете использовать в своих проектах.

Мы можем начертить и создать любой элемент по вашим эскизам

Даже не имея точных данных и цифр, мы начертим чертеж вашего элемента и предоставим их в архитектурных форматах.
Просто пришлите нам ваши эскизы и получите готовый элемент.

Посмотреть и скачать модели наших готовых изделий вы можете в нашем каталоге фасадных изделий
Свяжитесь с нами
Имя
Компания
Телефон для связи